| 住所 | 八尾市東町1丁目 新築戸建 |
|---|---|
| 交通アクセス |
近鉄大阪線 河内山本駅 徒歩16分 |
| 販売価格 |
2,500万円 |
| 土地 |
面積:64.14㎡ |
| 土地権利:所有権 | |
| 地目:宅地 | |
|
接道: |
|
|
駐車場:カースぺ―ス |
|
| 現況:完成 |
|
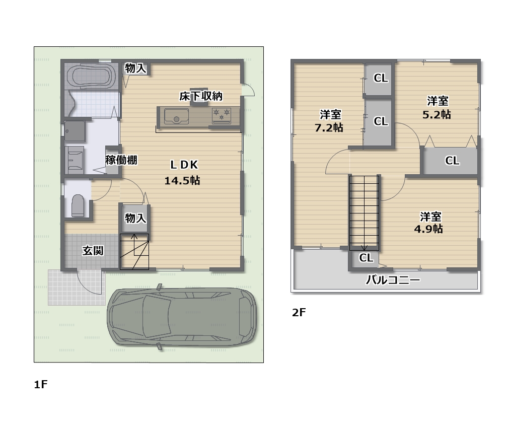
| 建物 | 建物面積: |
| 延床面積:74.80㎡ | |
| 構造:木造2階建 | |
| 間取り:3LDK | |
| 築年数:新築 | |
| 現況: 空家 |
|
| 引渡: 即時 | |
| 設備 | ガス:- |
| 水道:- | |
| 汚水:- | |
| 公法上の制限等 |
都市計画:市街化区域 |
| 用途地域:第ニ種中高層住居専用地域 |
|
|
建ぺい率:60%・200% |
|
| 国土法届: | |
|
高度地区: - |
|
|
防火指定: |
|
| 区面整理: - | |
| その他 |
八尾市東町1丁目 新築戸建 ■広々14.5帖のLDK☆ ■全室収納付き★ ※現地案内いつでも可能ですので、お気軽にお問合せ下さいませ♪ |
| 周辺校舎 | 小学校:東山本小学校 |
| 中学校:東中学校 | |
| 備考 | 取引形態: - |
| 報酬形態: - |

Accessアクセス
本社
大阪府大阪市中央区内久宝寺町4丁目2−3

平野店
大阪府大阪市平野区加美東4-16-1-201

八尾店
大阪府八尾市安中町4丁目8-18

関連会社
